ARTTU Pracownia Architektury
Pomiń nawigacje
  • start
  • projekty
  • konserwatorskie
  • archiLektura
  • publikacje
  • arttu
  • kontakt
 

WARSZAWA BEMOWO

Dom na sympatycznym osiedlu na warszawskim Bemowie.

powierzchnia: 156,26m2
kubatura:       794,40m3

Projekt - marzec 2009

Realizacja - ?

 

stan istniejący

współautor - mgr inż arch. Maria Falkiewicz

powrót

A03-RZUT PARTERU
rzut parteru
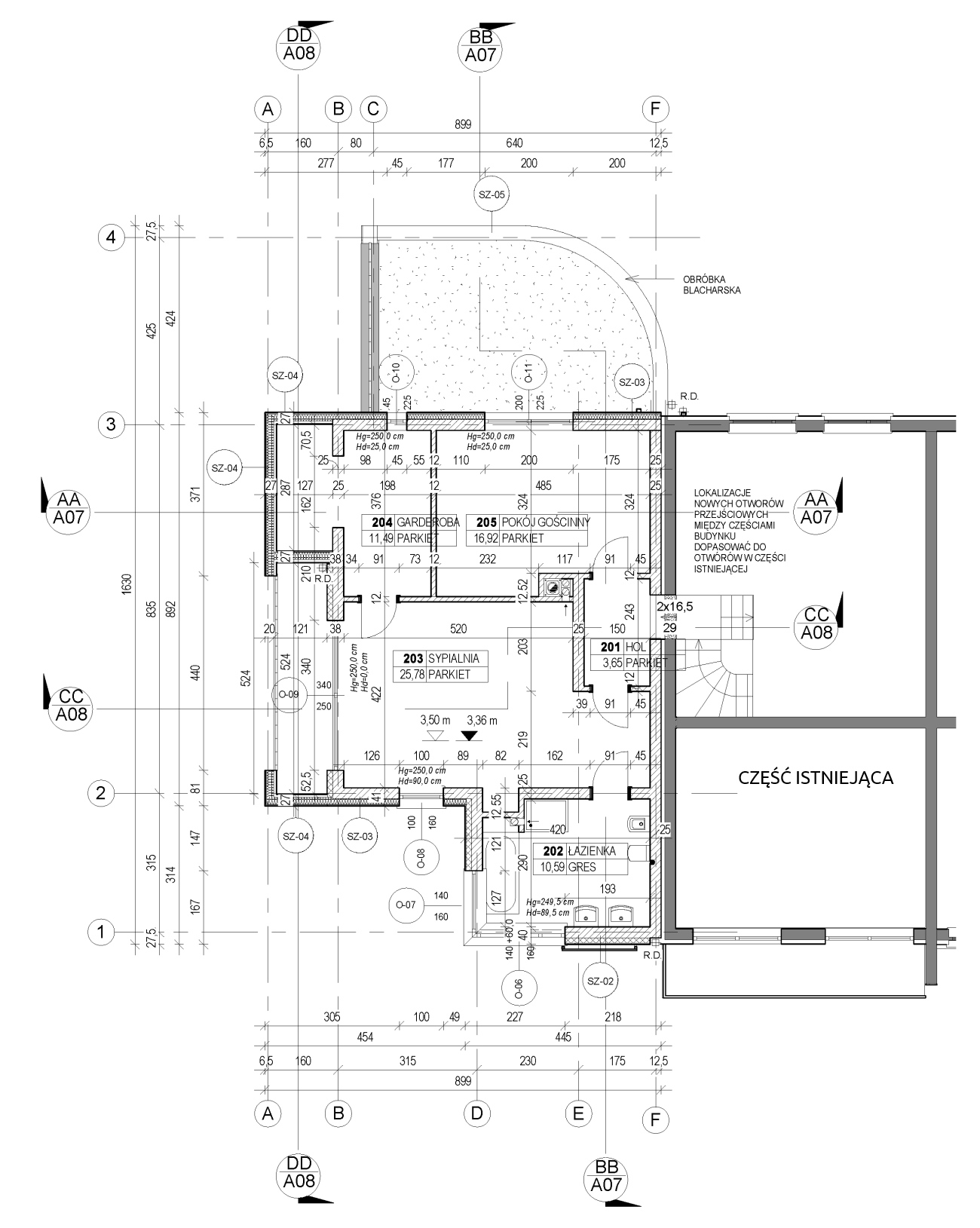
A04-RZUT PIETRA
rzut piętra
A12
widoki
wst szkice
pierwsze szkice - rysunki odręczne Maria Falkiewicz
lem 1
lem 2
lem 3

o ile nie zaznaczono inaczej wszystkie materiały tu zawarte: © 2001 - 2026 arttu

Darmowy licznik odwiedzin