ARTTU Pracownia Architektury
Pomiń nawigacje
  • start
  • projekty
  • konserwatorskie
  • archiLektura
  • publikacje
  • arttu
  • kontakt
 

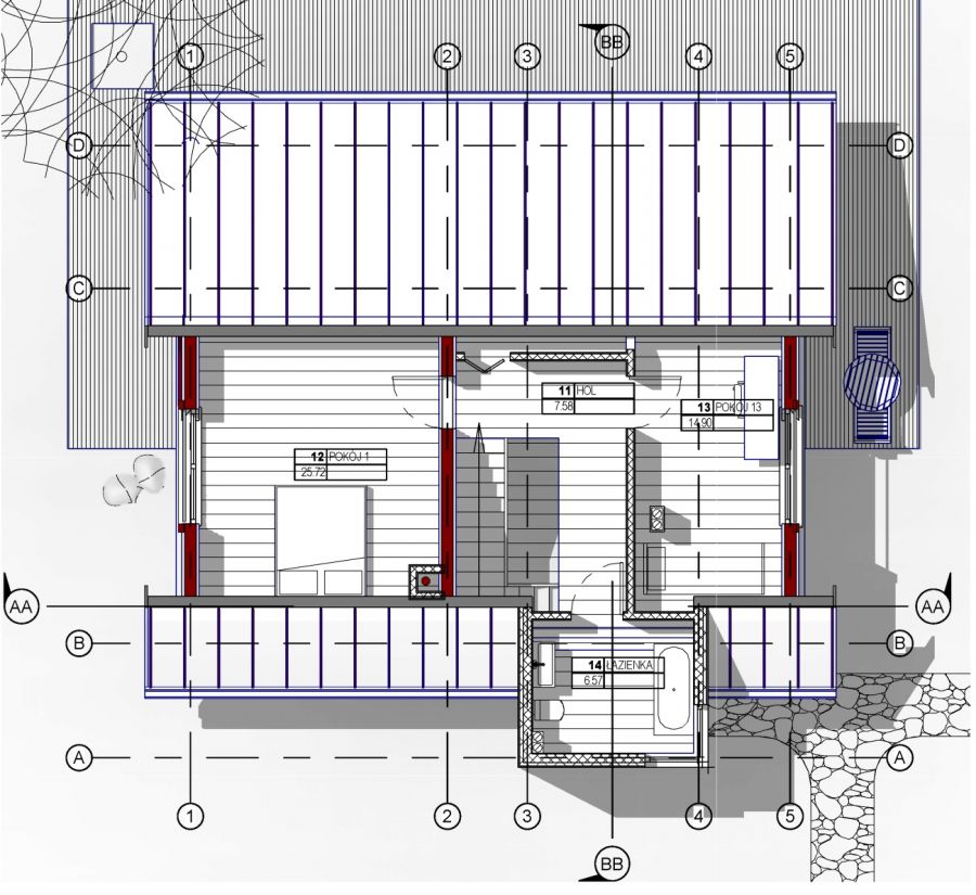
DOM Z BALI

Projekt niedużego domu całorocznego, łączącego tradycje z nowoczesnością. Powierzchnia - około 90m2.

Dom dla bezdzietnego małżeństwa, pracującego w domu (2 małe gabinetu od strony ogrodu); Warmia.

 

Projekt - 2012-2013

Realizacja - ?

powrót

widok 2
dom Warmia Page 01
dom Warmia Page 02
dom Warmia Page 04
dom Warmia Page 05
dom Warmia Page 13
dom Warmia Page 03
dom Warmia Page 06
dom Warmia Page 07
dom Warmia Page 08
dom Warmia Page 09
dom Warmia Page 10
dom Warmia Page 11
dom Warmia Page 12
widok 0
widok 4
widok 3
widok 1

o ile nie zaznaczono inaczej wszystkie materiały tu zawarte: © 2001 - 2026 arttu

Darmowy licznik odwiedzin