ARTTU Pracownia Architektury
Pomiń nawigacje
  • start
  • projekty
  • konserwatorskie
  • archiLektura
  • publikacje
  • arttu
  • kontakt
 

DOM W MAGDALENCE

Projekt koncepcji zmniejszenia i unowocześnienia domu z lat 90ych. Projekt obejmuje zmianę aranżacji  pomieszczeń domu, poprawienie funkcji obiektu z dostosowaniem do potrzeb klienta w XXIw.

powrót

WIZUALIZACJE UPROSZCZONE

od frontu 1
od tylu 1
od frontu 2
od tylu 2
od frontu 3
od tylu 3
od frontu 3a
widok z ulicy 3

REARANŻACJA

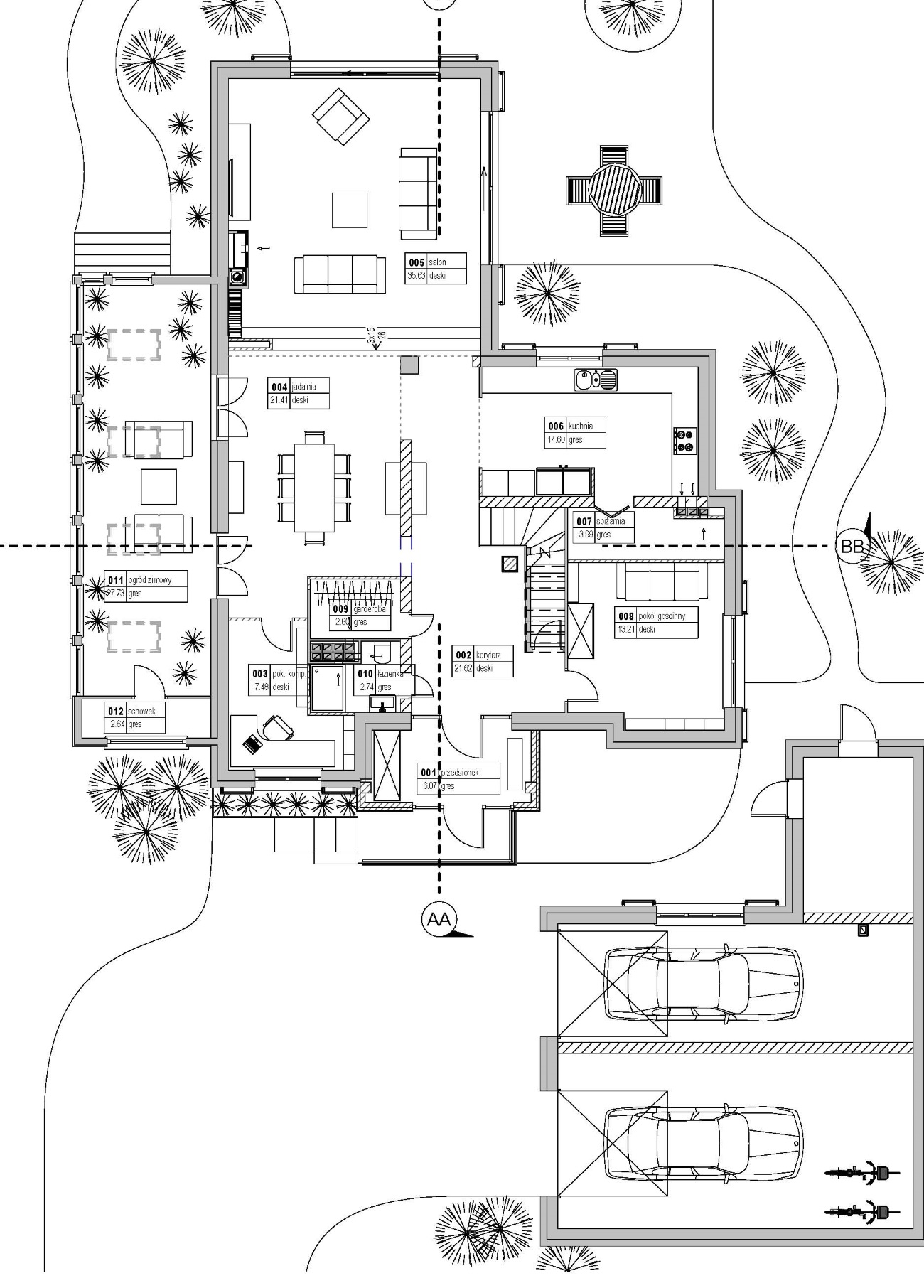
rzut
Po rearanżacji
rzut stan istniejacy
Stan istniejący.

STAN ISTNIEJĄCY

 DSC7286.JPG
 DSC7319.JPG

o ile nie zaznaczono inaczej wszystkie materiały tu zawarte: © 2001 - 2026 arttu

Darmowy licznik odwiedzin