ARTTU Pracownia Architektury
Pomiń nawigacje
start
projekty
konserwatorskie
archiLektura
publikacje
arttu
kontakt
KONCEPCJA
Widok z wys. 20m_1
Widok z wys. 20m_2
Widok z wys. 20m_3
Widok od furtki
Widok od ogrodu
Widok z ulicy.
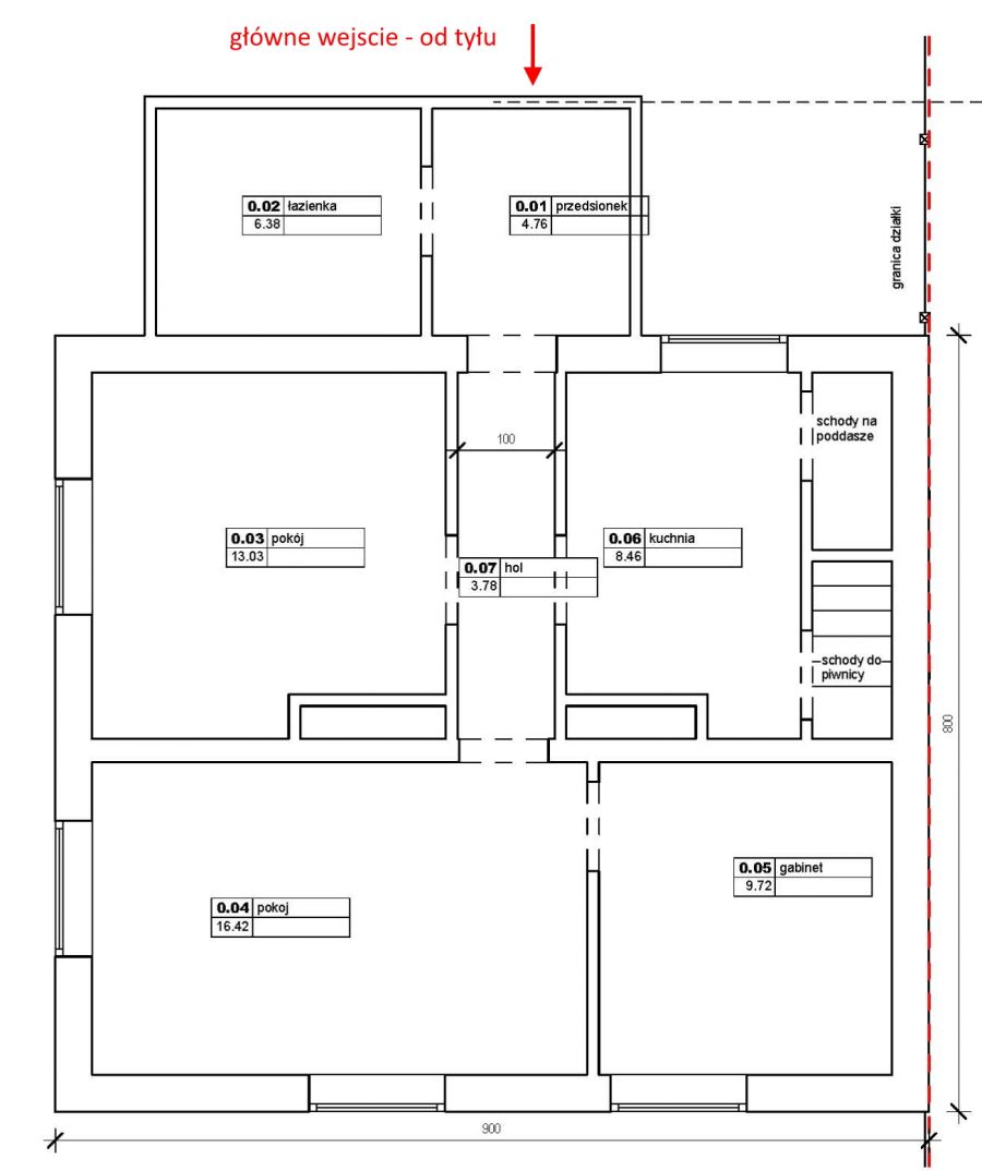
Rzut całości założenia
STAN ISTNIEJĄCY
MAPKA